Report bug
Home
>
Lazio
>
RM
>
Roma
>
Cecchignola Fonte Meravigliosa
>
Cecchignola - Giuliano Dalmata
49 / 189
←
→
1 / 28
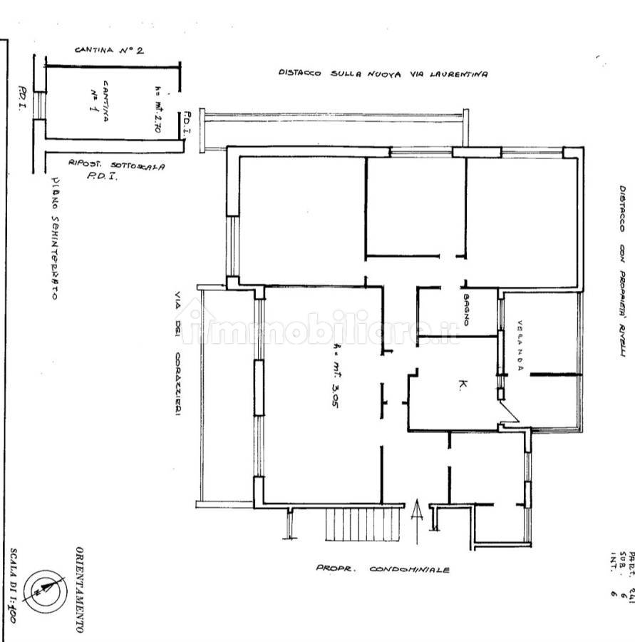
Appartamento Via dei Corazzieri, Cecchignola - Giuliano Dalmata, Roma
📐
175 m²
🚪
5+ locali
🚿
2 bagni
🏢
Piano 2
🛗
Ascensore
immobiliare.it ↗
▼ Mostra mappa
Alt ←
←
Precedente
Successivo
→
Alt →
Quanto costa questo immobile?
€
.000
Spazio
Indovina
↵
Sessione: 0 stime
Sessione: 0 stime