Report bug
Home
>
Lazio
>
RM
>
Roma
>
Casalotti Casal Selce Maglianella
>
Casalotti
14 / 383
←
→
1 / 36
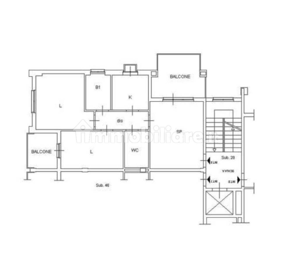
Appartamento Via Nosate, 67, Casalotti, Roma
📐
90 m²
🚪
3 locali
🚿
2 bagni
🏢
Piano 2
🛗
Ascensore
immobiliare.it ↗
▼ Mostra mappa
Alt ←
←
Precedente
Successivo
→
Alt →
Quanto costa questo immobile?
€
.000
Spazio
Indovina
↵
Sessione: 0 stime
Sessione: 0 stime