Report bug
Home
>
Lazio
>
RM
>
Roma
>
Balduina, Medaglie d'Oro
51 / 370
←
→
1 / 31
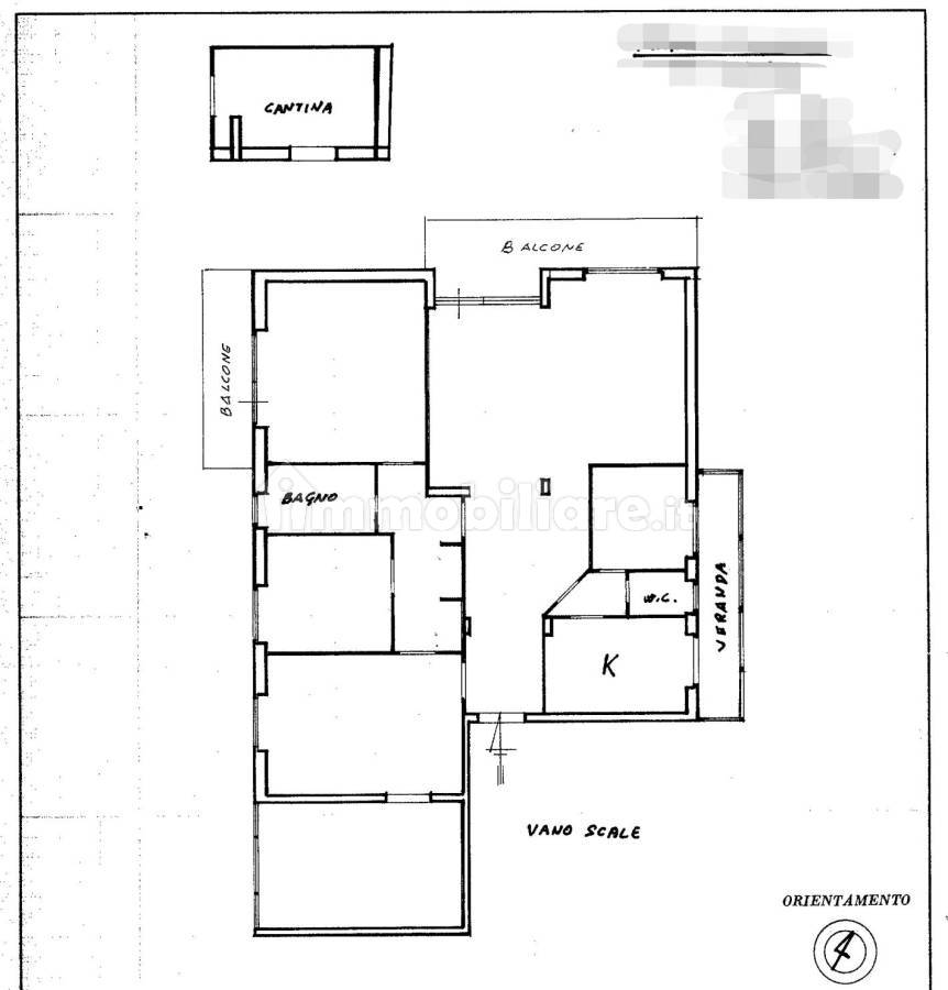
Attico - Mansarda Via Ugo Bignami, Balduina, Roma
📐
169 m²
🚪
5+ locali
🚿
2 bagni
🏢
Piano 5
🛗
Ascensore
immobiliare.it ↗
▼ Mostra mappa
Alt ←
←
Precedente
Successivo
→
Alt →
Quanto costa questo immobile?
€
.000
Spazio
Indovina
↵
Sessione: 0 stime
Sessione: 0 stime