Report bug
Home
>
Lazio
>
RM
>
Roma
>
Anagnina Romanina Tor Vergata
>
Anagnina
112 / 198
←
→
1 / 77
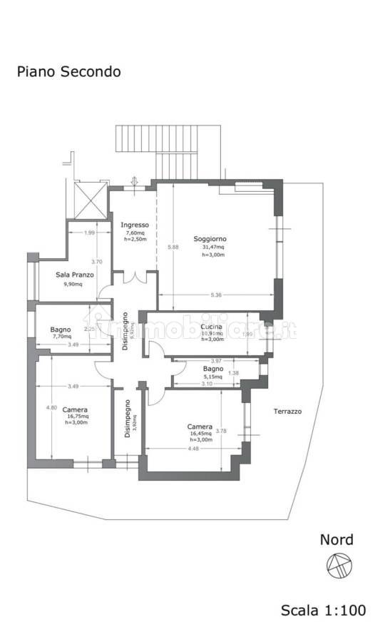
Appartamento Via Anagnina, 322, Anagnina, Roma
📐
170 m²
🚪
4 locali
🚿
2 bagni
🏢
Piano 2
🛗
Ascensore
immobiliare.it ↗
▼ Mostra mappa
Alt ←
←
Precedente
Successivo
→
Alt →
Quanto costa questo immobile?
€
.000
Spazio
Indovina
↵
Sessione: 0 stime
Sessione: 0 stime