Report bug
Home
>
Lazio
>
RM
>
Roma
>
Acilia, Casal Bernocchi, Centro Giano, Dragona, Malafede, Vitinia
170 / 615
←
→
1 / 14
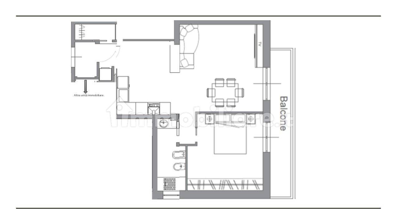
Appartamento Via Francesco Suriano, 10, Acilia, Roma
📐
65 m²
🚪
2 locali
🚿
1 bagni
🏢
Piano 2
immobiliare.it ↗
▼ Mostra mappa
Alt ←
←
Precedente
Successivo
→
Alt →
Quanto costa questo immobile?
€
.000
Spazio
Indovina
↵
Sessione: 0 stime
Sessione: 0 stime