Report bug
Home
>
Campania
>
SA
>
Salerno
>
Centro Storico, Teatro Verdi, Centro
>
Centro Storico - Teatro Verdi
38 / 103
←
→
1 / 58
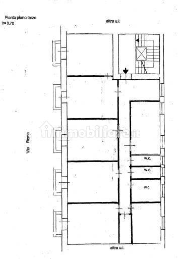
Appartamento Via Roma , 61, Centro Storico - Teatro Verdi, Salerno
📐
198 m²
🚪
5+ locali
🚿
3+ bagni
🏢
Piano 3
🛗
Ascensore
immobiliare.it ↗
▼ Mostra mappa
Alt ←
←
Precedente
Successivo
→
Alt →
Quanto costa questo immobile?
€
.000
Spazio
Indovina
↵
Sessione: 0 stime
Sessione: 0 stime