Report bug
Home
>
Campania
>
CE
>
Caserta
>
Caserta Nord
>
San Leucio - Briano
35 / 65
←
→
1 / 3
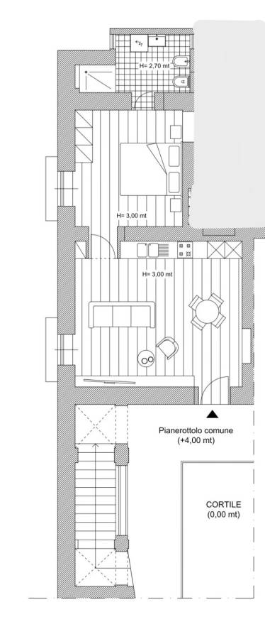
Appartamento Via Ponte, 28, San Leucio - Briano, Caserta
📐
50 m²
🚪
2 locali
🚿
1 bagni
🏢
Piano 1
immobiliare.it ↗
▼ Mostra mappa
Alt ←
←
Precedente
Successivo
→
Alt →
Quanto costa questo immobile?
€
.000
Spazio
Indovina
↵
Sessione: 0 stime
Sessione: 0 stime