Report bug
Home
>
Calabria
>
CS
>
Cosenza
>
Panebianco, Stadio, Città 2000, Acquedotto
5 / 359
←
→
1 / 30
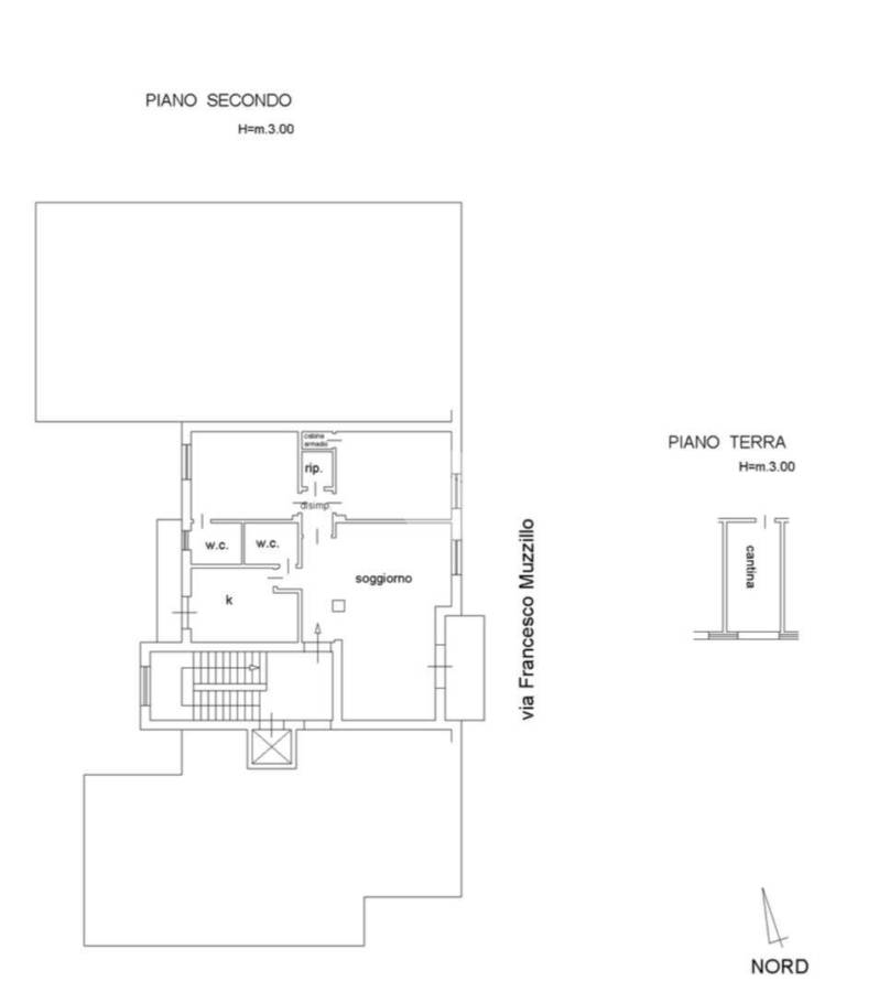
Appartamento Via Francesco Muzzillo, 37, Acquedotto, Cosenza
📐
135 m²
🚪
3 locali
🚿
2 bagni
🏢
Piano 2
🛗
Ascensore
immobiliare.it ↗
▼ Mostra mappa
Alt ←
←
Precedente
Successivo
→
Alt →
Quanto costa questo immobile?
€
.000
Spazio
Indovina
↵
Sessione: 0 stime
Sessione: 0 stime