Report bug
Home
>
Calabria
>
CS
>
Cosenza
>
Centro, Mancini
>
Mancini
21 / 47
←
→
1 / 26
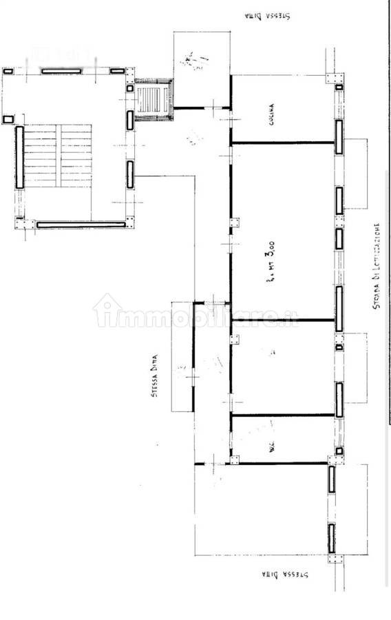
Appartamento Viale Giacomo Mancini, Mancini, Cosenza
📐
162 m²
🚪
5+ locali
🚿
2 bagni
🏢
Piano 3
🛗
Ascensore
immobiliare.it ↗
▼ Mostra mappa
Alt ←
←
Precedente
Successivo
→
Alt →
Quanto costa questo immobile?
€
.000
Spazio
Indovina
↵
Sessione: 0 stime
Sessione: 0 stime