Report bug
Home
>
Calabria
>
CS
>
Cosenza
>
Centro, Mancini
124 / 328
←
→
1 / 10
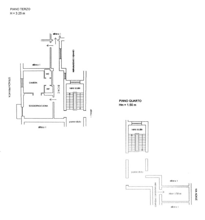
Appartamento Via Adige, Centro, Cosenza
📐
53 m²
🚪
1 locali
🚿
1 bagni
🏢
Piano 3
immobiliare.it ↗
▼ Mostra mappa
Alt ←
←
Precedente
Successivo
→
Alt →
Quanto costa questo immobile?
€
.000
Spazio
Indovina
↵
Sessione: 0 stime
Sessione: 0 stime